3-Zimmer-Wohung mit Balkon
38518 Gifhorn, Etagenwohnung zur Miete
Kontaktdaten
-
FirmaKellner Immobilien GmbH
-
AnschriftSaarstr. 21
38440 Wolfsburg -
E-Mail
-
Telefon
-
Telefon
-
Fax05361 46499920
Objektdaten
-
Objekt-ID5567
-
ObjekttypenEtagenwohnung, Wohnung
-
Adresse38518 Gifhorn
-
Wohnfläche ca.87 m²
-
Zimmer3
-
Schlafzimmer2
-
Badezimmer1
-
HeizungsartZentralheizung
-
Wesentlicher EnergieträgerGas
-
Baujahr1995
-
Zustandnach Vereinbarung
-
Kaution1.372,00 EUR
-
Nettokaltmiete686,00 EUR
-
Nebenkosten320,00 EUR
Ausstattung / Merkmale
- ✓ Altbau
- ✓ Keller
Energieausweis
-
EnergieausweistypVerbrauchsausweis
-
Gültig bis16.04.2028
-
GebäudeartWohngebäude
-
Baujahr lt. Energieausweis1995
-
Wesentlicher EnergieträgerGas
-
Endenergieverbrauch85,00 kWh/(m²·a)
Objektbeschreibung
Beschreibung
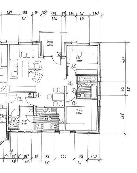
Diese gepflegte 3-Zimmerwohnung befindet sich im 1. Obergeschoss eines 6 Parteien-Hauses. Ein Kellerraum sowie ein Waschkeller sind vorhanden. Die Heizkosten sind in den Nebenkosten enthalten. Eine Garage kann für 50,00 € monatlich angemietet werden.
Ausstattung
Diese helle Wohnung mit Balkon wird unrenoviert übergeben. Im geräumigen Wohnzimmer lässt sich ein gemütlicher Essplatz integrieren. Wie auf dem Grundriss zu erkennen ist, bietet das Wohnzimmer weiteren Platz für eine Wohnlandschaft oder ähnliches. Die Küche ist hell gefliest und mit einem weißen Fliesenspiegel versehen. Die vorhandene Einbauküche kann nach Absprache gegen eine Abstandszahlung übernommen werden. Das Badezimmer verfügt über eine Badewanne und Dusche sowie Waschbecken und WC. Ein Gäste-WC ist ebenfalls vorhanden.
Im Keller befindet sich ein Waschkeller zum Aufstellen einer eigenen Waschmaschine.
Sonstiges
Baujahr: 1995
Energie mit Warmwasser: Nein
Energiekennwert: 85 kWh/(m²*a)
Befeuerung/Energieträger: Gas
Energieausweistyp: Verbrauchsausweis
Heizungsart: Zentralheizung
Lage
Das Objekt befindet sich im Osten Gifhorns. Vielfältige Einkaufsmöglichkeiten, Restaurants sowie diverse Ärzte sind in der Umgebung zu erreichen. Die Städte Braunschweig und Wolfsburg liegen in ca. 30 Fahrminuten Entfernung.
Die dargestellte Position der Immobilie ist nur eine ungefähre Angabe.











