Bürofläche in Gewerbegebiet Ost von Wolfsburg
38446 Wolfsburg, Bürofläche zur Miete
Kontaktdaten
-
FirmaKellner Immobilien GmbH
-
AnschriftSaarstr. 21
38440 Wolfsburg -
E-Mail
-
Telefon
-
Telefon
-
Fax05361 46499920
Objektdaten
-
Objekt-ID5549
-
ObjekttypenBüro/Praxis, Bürofläche
-
Adresse38446 Wolfsburg
-
Bürofläche ca.255 m²
-
Gesamtfläche ca.255 m²
-
HeizungsartFernwärme
-
Baujahr1960
-
Mieterprovision (gewerblich)2,38 NKM inkl. MwSt.
-
Kaution4.340,00 EUR
-
Nettokaltmiete2.170,00 EUR
-
Miete pro m²8,50 EUR
-
Nebenkosten557,50 EUR
Ausstattung / Merkmale
- ✓ Außenstellplatz
Energieausweis
-
EnergieausweistypVerbrauchsausweis
-
Gültig bis22.05.2029
-
GebäudeartNichtwohngebäude
-
Baujahr lt. Energieausweis1960
-
Wesentlicher EnergieträgerFernwärme
Objektbeschreibung
Beschreibung
Diese Bürofläche befindet sich im 2. Obergeschoss am Eingang des Gewerbegebietes Ost am Anfang der Dieselstraße.
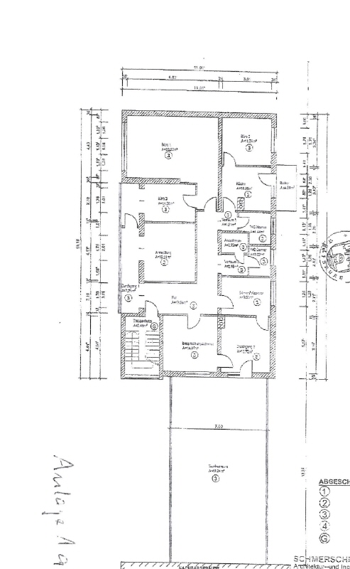
Am Eingang der Fläche befindet sich eine großzügige Anmeldung/ Empfang für die Besucher. Es sind 5 unterschiedlich große Büroräume vorhanden, die frei zugeordnet werden können.
Daneben gibt es eine Küche mit vorhandener Küchenzeile, getrennte Damen- und Herren-WC´s und einen Serverraum.
Teile der Bürofläche sind klimatisiert.
Das Highlight ist ein großer Besprechungsraum, der zwischen 2 Gebäuden aufgehangen wurde. Die Fensterflächen zur Dieselstraße sind als Lärmschutzverlgasung ausgelegt. Zusätzlich wurden noch Beschattungselemente angebracht.
Als Fußboden wurde grauer Nadelfilz verlegt. Alle Räume sind mit einer CAT6 Verkabelung ausgestattet.
Auf dem Grundstück werden 2 Parkplätze zur Verfügung gestellt. Im Umkreis stehen weitere öffentliche Parkplätze zur Verfügung.
Sonstiges
Baujahr: 1960
Energiekennwert Wärme: 139,9 kWh/(m²*a)
Energiekennwert Strom: 64,5 kWh/(m²*a)
Befeuerung/Energieträger: Fernwärme
Energieausweistyp: Verbrauchsausweis
Heizungsart: Fernwärme
Lage
Bürofläche liegt etwas 800 m vom Wolfsburger Bahnhof entfernt und hat somit eine verkehrsgünstige Lage in alle Richtungen.
Die dargestellte Position der Immobilie ist nur eine ungefähre Angabe.










